Welcome to visit Shandong Yueyang Door & Window Co., Ltd.!

Contact Us

Company Name:Shandong Yueyang Door & Window Co., Ltd.

Address:About 40 meters southwest of Xinhang Building, Lishan Road, Lixia District, Jinan City

Hotline: 4000-999-353

Tel: 0531-87809518

Tel: 15098956022(WeChat)

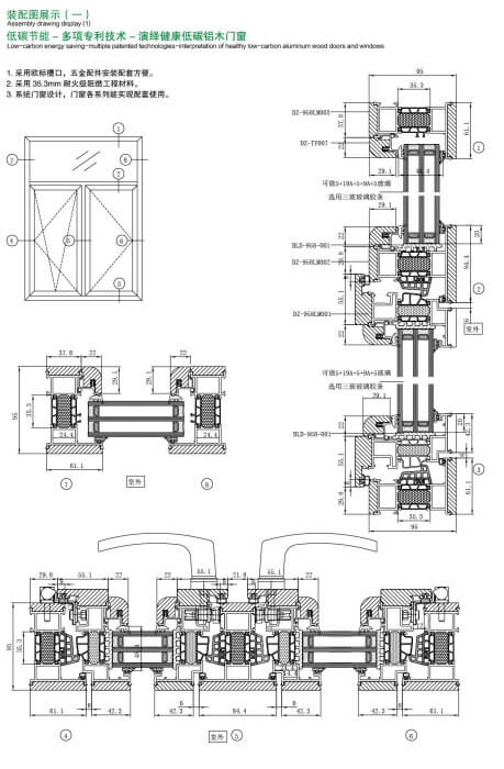
Aluminum-Clad Wooden Doors And Windows

Your Position:Home>Product Display>Aluminum-Clad Wooden Doors And Windows958 Series Aluminum-Wood Passive Inward Casement Window